top of page
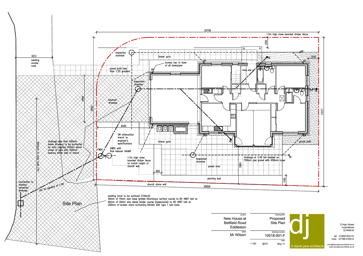
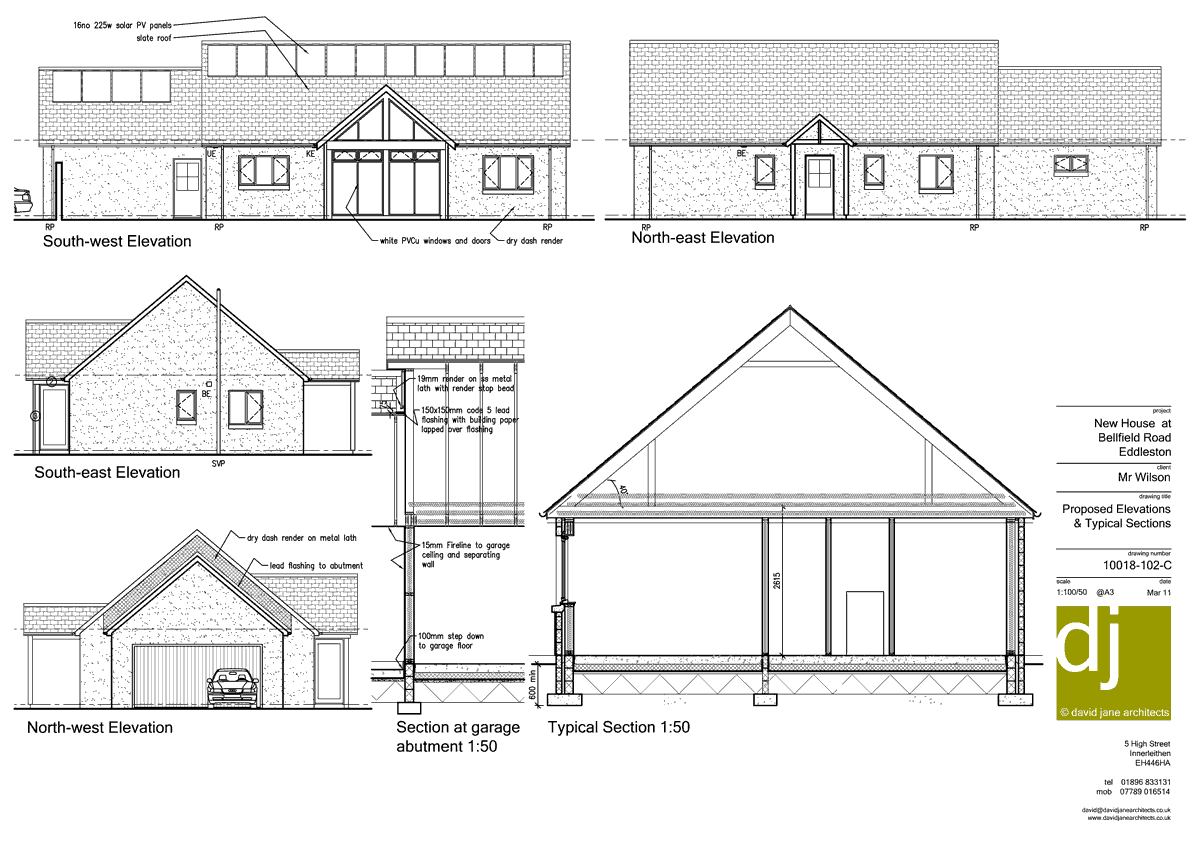
A new, compact, low maintenance, low energy, 3 bedroom house on the site of an old industrial shed. Adjacent to Eddleston Parish Church, a Category B Listed Building.
​
With a mostly south-westerly aspect across the churchyard a centrally located living room with cathedral ceiling was proposed. The master bedroom with en-suite and kitchen dining room also have views to the south-west with bedrooms 2 and 3 having views to the side and rear. An attached double garage is provided with direct access to the house.
An air-source heat pump with a super insulted heat store provide the central heating and hot water supply. Photo voltaic solar panels provide electricity with any excess being sold back to the national grid.
Wilson House, Eddleston, Scottish Borders.
![]() | ![]() |
|---|---|
![]() | ![]() |
![]() | ![]() |
![]() | ![]() |
![]() | ![]() |
![]() | ![]() |
![]() |
bottom of page

















